Top.Mail.Ru

Шипиловский проезд, д. 43, к. 2

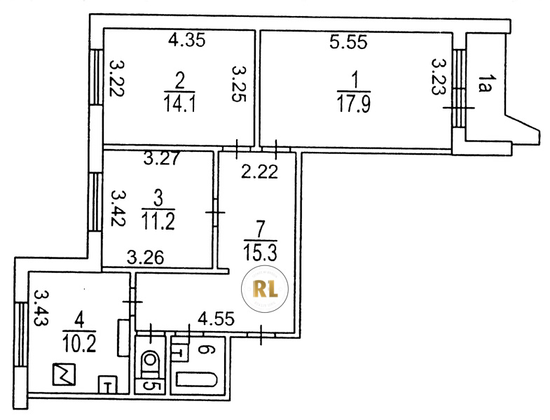
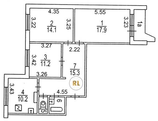
База каталог, Кол-во подъездов: 3, Имеется, П-44, Москва, Орехово-Борисово Северное, Площадь парковки: 0, Пассажирский лифт: 3, От метро: 283, Южный, нет, Наименьшее кол-во этажей: 1, Наибольшее кол-во этажей: 17, Орехово, Кол-во помещений: 204, Кол-во нежилых помещений: 1, Год ввода в эксплуатацию: 1990, 3-комн, Кол-во жилых помещений: 203, С, дом 43, корпус 2, да, да, да, да, да, да, Имеется, Грузовых лифтов: 3, Год постройки: 1990, Шипиловский проезд, 37.699112, 55.611373
Свяжитесь со мной на счет цены
10 дн.
T55S611373L37S699112T

На карте


Условия сделки

Источник


Старт продаж

Возможно заинтересует