Top.Mail.Ru

Изваринская ул., д. 3

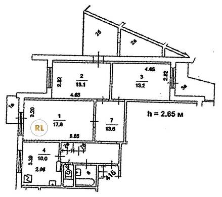
База каталог, Наибольшее кол-во этажей: 16, Имеется, П-3/16, Москва, Внуково, Площадь парковки: 0, Пассажирский лифт: 3, Западный, нет, Наименьшее кол-во этажей: 16, Кол-во помещений: 192, Год ввода в эксплуатацию: 1986, Кол-во подъездов: 3, Кол-во нежилых помещений: 1, 3-комн, Кол-во жилых помещений: 191, D, дом 3, Имеется, Грузовых лифтов: 3, Год постройки: 1986, Изваринская улица, 37.253162, 55.612014
13 000 000 Р
10 дн.
T55S612014L37S253162T
+

На карте


Условия сделки

Источник


Старт продаж

Возможно заинтересует