Top.Mail.Ru

Аэрофлотская ул., д. 10/13

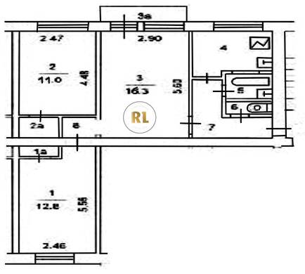
База каталог, Кол-во подъездов: 4, I-511, Москва, Внуково, Площадь парковки: 0, Пассажирский лифт: 0, От метро: 4300, Западный, нет, Наименьшее кол-во этажей: 5, Наибольшее кол-во этажей: 5, Рассказовка, Кол-во помещений: 82, Кол-во нежилых помещений: 2, Год ввода в эксплуатацию: 1961, 3-комн, Кол-во жилых помещений: 80, Не присвоен, дом 10/13, нет, нет, нет, нет, нет, нет, Имеется, Грузовых лифтов: 0, Год постройки: 1961, Аэрофлотская улица, 37.293020, 55.612045
Свяжитесь со мной на счет цены
10 дн.
T55S612045L37S293020T

На карте


Условия сделки

Источник


Старт продаж

Возможно заинтересует