Top.Mail.Ru

Интернациональная ул., д. 2

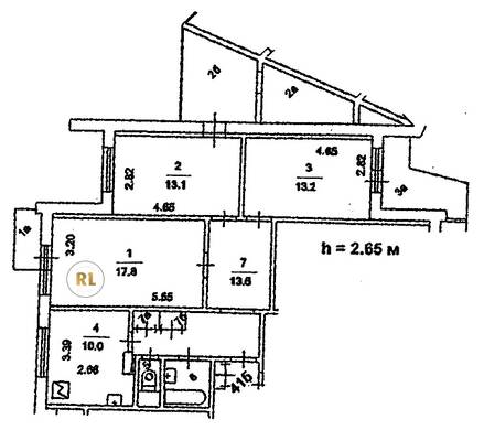
База каталог, Наибольшее кол-во этажей: 17, Имеется, П-3/16, Москва, Внуково, Площадь парковки: 0, Пассажирский лифт: 4, Западный, нет, Наименьшее кол-во этажей: 17, Кол-во помещений: 263, Год ввода в эксплуатацию: 1997, Кол-во подъездов: 4, Кол-во нежилых помещений: 7, 3-комн, Кол-во жилых помещений: 256, Не присвоен, дом 2, Имеется, Грузовых лифтов: 4, Год постройки: 1997, Интернациональная улица, 37.256477, 55.612233
Свяжитесь со мной на счет цены
10 дн.
T55S612233L37S256477T

На карте


Условия сделки

Источник


Старт продаж

Возможно заинтересует