Top.Mail.Ru

Интернациональная ул., д. 4

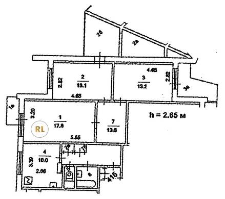
База каталог, Наибольшее кол-во этажей: 17, П-3/16, Москва, Внуково, Площадь парковки: 0, Пассажирский лифт: 3, Западный, нет, Наименьшее кол-во этажей: 17, Кол-во помещений: 204, Год ввода в эксплуатацию: 1996, Кол-во подъездов: 3, Кол-во нежилых помещений: 1, 3-комн, Кол-во жилых помещений: 203, Не присвоен, дом 4, Имеется, Грузовых лифтов: 3, Год постройки: 1996, Интернациональная улица, 37.255165, 55.612477
Свяжитесь со мной на счет цены
10 дн.
T55S612477L37S255165T

На карте


Условия сделки

Источник


Старт продаж

Возможно заинтересует