Top.Mail.Ru

Изваринская ул., д. 4

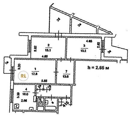
База каталог, Наибольшее кол-во этажей: 17, Имеется, П-3/17, Москва, Внуково, Площадь парковки: 0, Пассажирский лифт: 3, Западный, нет, Наименьшее кол-во этажей: 17, Кол-во помещений: 203, Год ввода в эксплуатацию: 1987, Кол-во подъездов: 3, Кол-во нежилых помещений: 2, 3-комн, Кол-во жилых помещений: 201, D, дом 4, Имеется, Грузовых лифтов: 3, Год постройки: 1987, Изваринская улица, 37.252147, 55.612665
Свяжитесь со мной на счет цены
10 дн.
T55S612665L37S252147T

На карте


Условия сделки

Источник


Старт продаж

Возможно заинтересует