Top.Mail.Ru

Домодедовская ул., д. 20, к. 1

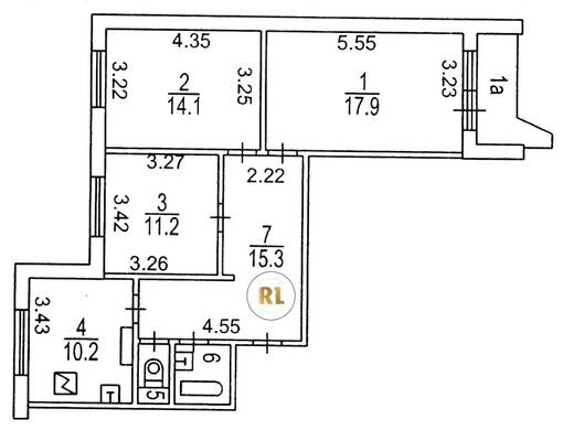
База каталог, Кол-во подъездов: 2, Имеется, П-44, Москва, Орехово-Борисово Северное, Пассажирский лифт: 2, От метро: 470, Южный, да, Наименьшее кол-во этажей: 1, Наибольшее кол-во этажей: 17, Орехово, Кол-во помещений: 143, Кол-во нежилых помещений: 15, Год ввода в эксплуатацию: 1998, 3-комн, Кол-во жилых помещений: 128, дом 20, корпус 1, да, да, да, да, да, да, Имеется, Грузовых лифтов: 2, Год постройки: 1998, Домодедовская улица, 37.702113, 55.612853
Свяжитесь со мной на счет цены
10 дн.
T55S612853L37S702113T

На карте


Условия сделки

Источник


Старт продаж

Возможно заинтересует