Top.Mail.Ru

Домодедовская ул., д. 18, к. 2

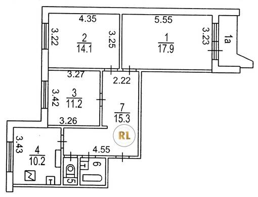
База каталог, Кол-во подъездов: 2, Имеется, П-44, Москва, Орехово-Борисово Северное, Пассажирский лифт: 2, От метро: 550, Южный, да, Наименьшее кол-во этажей: 1, Наибольшее кол-во этажей: 17, Орехово, Кол-во помещений: 138, Кол-во нежилых помещений: 3, Год ввода в эксплуатацию: 1999, 3-комн, Кол-во жилых помещений: 135, дом 18, корпус 2, да, да, да, да, да, да, Имеется, Грузовых лифтов: 2, Год постройки: 1999, Домодедовская улица, 37.703361, 55.613087
Свяжитесь со мной на счет цены
10 дн.
T55S613087L37S703361T

На карте


Условия сделки

Источник


Старт продаж

Возможно заинтересует