Top.Mail.Ru

Домодедовская ул., д. 18

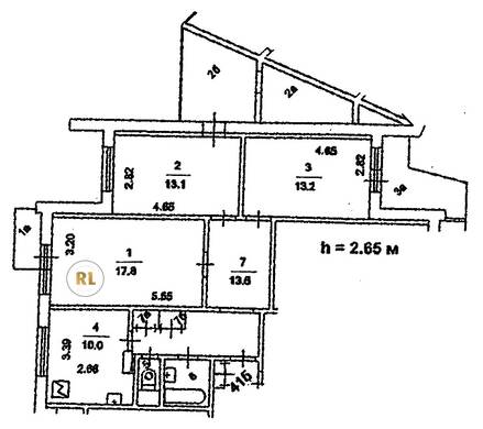
База каталог, Кол-во подъездов: 2, Имеется, П-3/16, Москва, Орехово-Борисово Северное, Пассажирский лифт: 2, От метро: 610, Южный, да, Наименьшее кол-во этажей: 1, Наибольшее кол-во этажей: 16, Орехово, Кол-во помещений: 130, Кол-во нежилых помещений: 2, Год ввода в эксплуатацию: 1983, 3-комн, Кол-во жилых помещений: 128, дом 18, нет, да, да, да, да, да, Имеется, Грузовых лифтов: 2, Год постройки: 1983, Домодедовская улица, 37.704134, 55.613422
Свяжитесь со мной на счет цены
10 дн.
T55S613422L37S704134T

На карте


Условия сделки

Источник


Старт продаж

Возможно заинтересует