Top.Mail.Ru

Большая Внуковская ул., д. 1

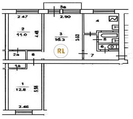
База каталог, Кол-во подъездов: 4, Имеется, I-511, Москва, Внуково, Площадь парковки: 0, Пассажирский лифт: 0, От метро: 4300, Западный, нет, Наименьшее кол-во этажей: 5, Наибольшее кол-во этажей: 5, Рассказовка, Кол-во помещений: 80, Кол-во нежилых помещений: 0, Год ввода в эксплуатацию: 1974, 3-комн, Кол-во жилых помещений: 80, D, дом 1, нет, нет, нет, нет, нет, нет, Имеется, Грузовых лифтов: 0, Год постройки: 1974, Большая Внуковская улица, 37.289445, 55.614261
Свяжитесь со мной на счет цены
10 дн.
T55S614261L37S289445T

На карте


Условия сделки

Источник


Старт продаж

Возможно заинтересует