Top.Mail.Ru

улица Красного Маяка, д. 8, к. 2

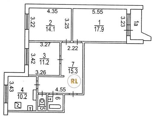
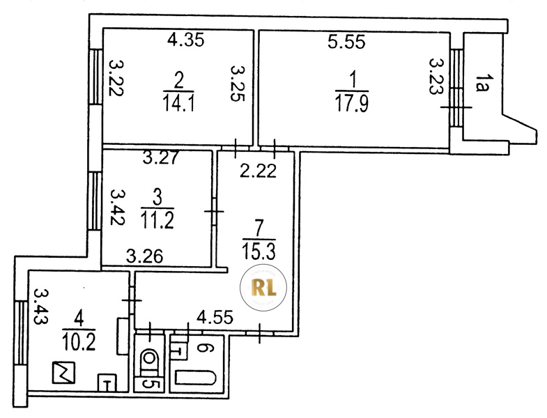
База каталог, Кол-во подъездов: 14, П-44, Москва, Чертаново Центральное, Пассажирский лифт: 14, От метро: 670, Южный, да, Наименьшее кол-во этажей: 1, Наибольшее кол-во этажей: 9, Пражская, Кол-во помещений: 493, Кол-во нежилых помещений: 0, Год ввода в эксплуатацию: 1970, 3-комн, Кол-во жилых помещений: 493, дом 8, корпус 2, нет, да, да, да, да, да, Грузовых лифтов: 0, Год постройки: 1970, улица Красного Маяка, 37.597118, 55.614338
Свяжитесь со мной на счет цены
10 дн.
T55S614338L37S597118T

На карте


Условия сделки

Источник


Старт продаж

Возможно заинтересует