Top.Mail.Ru

Плотинная ул., д. 1, к. 1

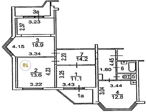
База каталог, Кол-во подъездов: 4, Отсутствует, П-44T, Москва, Внуково, Площадь парковки: 0, Пассажирский лифт: 4, От метро: 3800, Западный, нет, Наименьшее кол-во этажей: 12, Наибольшее кол-во этажей: 12, Рассказовка, Кол-во помещений: 180, Кол-во нежилых помещений: 4, Год ввода в эксплуатацию: 2006, 3-комн, Кол-во жилых помещений: 176, D, дом 1, корпус 1, нет, нет, нет, нет, нет, нет, Имеется, Грузовых лифтов: 4, Год постройки: 2006, Плотинная улица, 37.300009, 55.616122
Свяжитесь со мной на счет цены
10 дн.
T55S616122L37S300009T

На карте


Условия сделки

Источник


Старт продаж

Возможно заинтересует