Top.Mail.Ru

улица Мусы Джалиля, д. 40

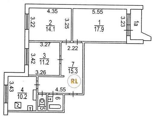
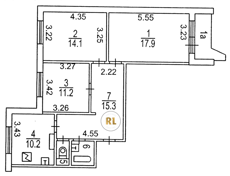
База каталог, Кол-во подъездов: 3, П-44, Москва, Зябликово, Пассажирский лифт: 3, От метро: 340, Южный, да, Наименьшее кол-во этажей: 1, Наибольшее кол-во этажей: 17, Красногвардейская, Кол-во помещений: 203, Кол-во нежилых помещений: 0, Год ввода в эксплуатацию: 1997, 3-комн, Кол-во жилых помещений: 203, дом 40, да, да, да, да, да, да, Грузовых лифтов: 3, Год постройки: 1997, улица Мусы Джалиля, 37.742483, 55.616351
Свяжитесь со мной на счет цены
10 дн.
T55S616351L37S742483T

На карте


Условия сделки

Источник


Старт продаж

Возможно заинтересует