Top.Mail.Ru

Ореховый бульвар, д. 59, к. 2

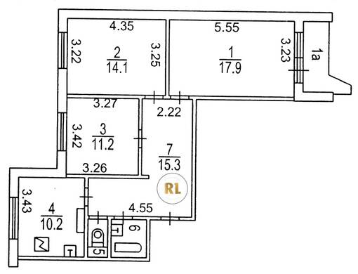
База каталог, Кол-во подъездов: 4, Имеется, П-44, Москва, Зябликово, Площадь парковки: 0, Пассажирский лифт: 4, От метро: 820, Южный, нет, Наименьшее кол-во этажей: 1, Наибольшее кол-во этажей: 15, Красногвардейская, Кол-во помещений: 421, Кол-во нежилых помещений: 198, Год ввода в эксплуатацию: 1999, 3-комн, Кол-во жилых помещений: 223, E, дом 59, корпус 2, нет, да, да, да, да, да, Имеется, Грузовых лифтов: 4, Год постройки: 1999, Ореховый бульвар, 37.755751, 55.616930
Свяжитесь со мной на счет цены
10 дн.
T55S616930L37S755751T

На карте


Условия сделки

Источник


Старт продаж

Возможно заинтересует