Top.Mail.Ru

улица Генерала Белова, д. 21

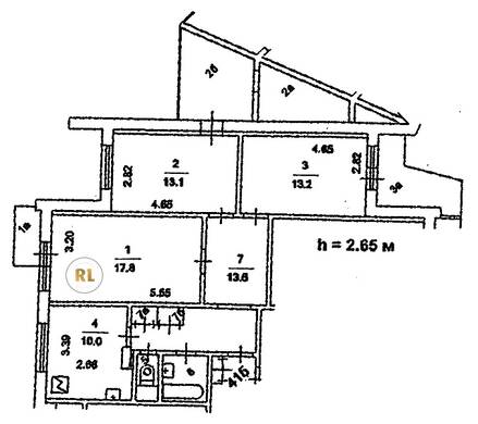
База каталог, Кол-во подъездов: 4, Имеется, П-3/16, Москва, Орехово-Борисово Северное, Площадь парковки: 0, Пассажирский лифт: 4, От метро: 730, Южный, нет, Наименьшее кол-во этажей: 1, Наибольшее кол-во этажей: 16, Домодедовская, Кол-во помещений: 256, Кол-во нежилых помещений: 1, Год ввода в эксплуатацию: 1975, 3-комн, Кол-во жилых помещений: 255, D, дом 21, нет, да, да, да, да, да, Имеется, Грузовых лифтов: 4, Год постройки: 1975, улица Генерала Белова, 37.720178, 55.617139
21 500 000 Р
10 дн.
T55S617139L37S720178T
+

На карте


Условия сделки

Источник


Старт продаж