Top.Mail.Ru

Кустанайская ул., д. 7, к. 4

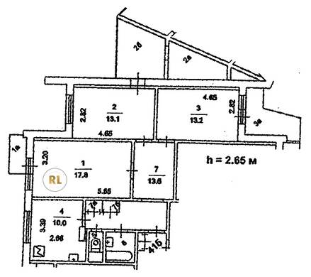
База каталог, Кол-во подъездов: 2, Отсутствует, П-3/17, Москва, Зябликово, Площадь парковки: 409,35, Пассажирский лифт: 2, От метро: 1000, Южный, да, Наименьшее кол-во этажей: 1, Наибольшее кол-во этажей: 17, Красногвардейская, Кол-во помещений: 136, Кол-во нежилых помещений: 0, Год ввода в эксплуатацию: 1983, 3-комн, Кол-во жилых помещений: 136, D, дом 7, корпус 4, нет, да, да, да, да, да, Отсутствует, Грузовых лифтов: 2, Год постройки: 1983, Кустанайская улица, 37.757602, 55.617891
Свяжитесь со мной на счет цены
10 дн.
T55S617891L37S757602T

На карте


Условия сделки

Источник


Старт продаж

Возможно заинтересует