Top.Mail.Ru

Кустанайская ул., д. 5, к. 2

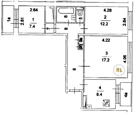
База каталог, Кол-во подъездов: 4, Имеется, П-30, Москва, Зябликово, Площадь парковки: 669,56, Пассажирский лифт: 8, От метро: 990, Южный, да, Наименьшее кол-во этажей: 1, Наибольшее кол-во этажей: 14, Красногвардейская, Кол-во помещений: 222, Кол-во нежилых помещений: 0, Год ввода в эксплуатацию: 1986, 3-комн, Кол-во жилых помещений: 222, D, дом 5, корпус 2, нет, да, да, да, да, да, Имеется, Грузовых лифтов: 0, Год постройки: 1986, Кустанайская улица, 37.755625, 55.618949
Свяжитесь со мной на счет цены
10 дн.
T55S618949L37S755625T

На карте


Условия сделки

Источник


Старт продаж

Возможно заинтересует