Top.Mail.Ru

Борисовский проезд, д. 34

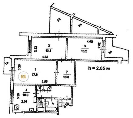
База каталог, Кол-во подъездов: 2, Имеется, П-3/16, Москва, Орехово-Борисово Северное, Площадь парковки: 0, Пассажирский лифт: 2, От метро: 1240, Южный, нет, Наименьшее кол-во этажей: 1, Наибольшее кол-во этажей: 16, Шипиловская, Кол-во помещений: 129, Кол-во нежилых помещений: 1, Год ввода в эксплуатацию: 1975, 3-комн, Кол-во жилых помещений: 128, D, дом 34, нет, да, да, да, да, нет, Имеется, Грузовых лифтов: 2, Год постройки: 1975, Борисовский проезд, 37.726951, 55.619284
Свяжитесь со мной на счет цены
10 дн.
T55S619284L37S726951T

На карте


Условия сделки

Источник


Старт продаж

Возможно заинтересует