Top.Mail.Ru

улица Теплый Стан, д. 9, к. 6

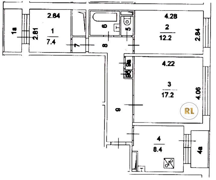
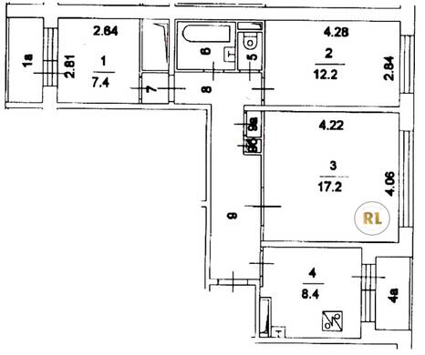
База каталог, Кол-во подъездов: 2, П-30, Москва, Теплый Стан, Площадь парковки: 0, Пассажирский лифт: 4, От метро: 890, Юго-Западный, нет, Наименьшее кол-во этажей: 14, Наибольшее кол-во этажей: 14, Тёплый Стан, Кол-во помещений: 112, Кол-во нежилых помещений: 2, Год ввода в эксплуатацию: 1988, 3-комн, Кол-во жилых помещений: 110, Не присвоен, дом 9, корпус 6, нет, да, да, да, да, да, Имеется, Грузовых лифтов: 0, Год постройки: 1988, улица Теплый Стан, 37.493299, 55.619518
Свяжитесь со мной на счет цены
10 дн.
T55S619518L37S493299T

На карте


Условия сделки

Источник


Старт продаж

Возможно заинтересует