Top.Mail.Ru

Чертановская ул., д. 28, к. 1

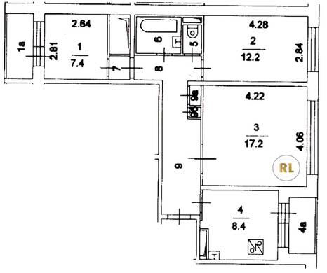
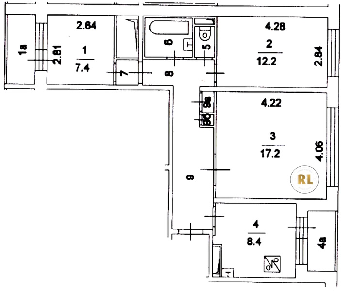
База каталог, Кол-во нежилых помещений: 2, П-30, Москва, Чертаново Центральное, Пассажирский лифт: 4, От метро: 1240, Южный, да, Наименьшее кол-во этажей: 12, Наибольшее кол-во этажей: 12, Южная, Кол-во помещений: 94, Кол-во подъездов: 2, 3-комн, Год ввода в эксплуатацию: 1985, Кол-во жилых помещений: 92, Не присвоен, дом 28, корпус 1, нет, да, да, да, да, нет, Имеется, Грузовых лифтов: 0, Год постройки: 1985, Чертановская улица, 37.593120, 55.619874
Свяжитесь со мной на счет цены
10 дн.
T55S619874L37S593120T

На карте


Условия сделки

Источник


Старт продаж

Возможно заинтересует