Top.Mail.Ru

Задонский проезд, д. 40/73

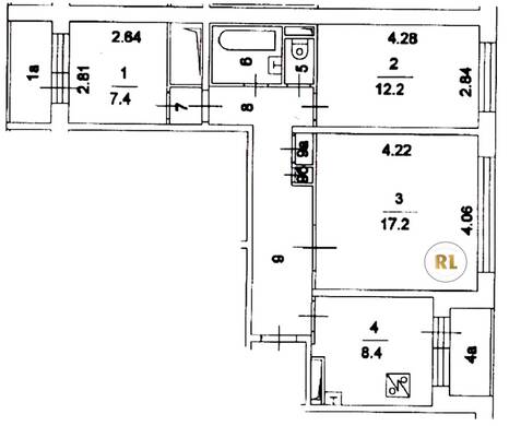
База каталог, Кол-во подъездов: 2, Имеется, П-30, Москва, Зябликово, Площадь парковки: 0, Пассажирский лифт: 4, От метро: 1300, Южный, нет, Наименьшее кол-во этажей: 1, Наибольшее кол-во этажей: 14, Шипиловская, Кол-во помещений: 111, Кол-во нежилых помещений: 0, Год ввода в эксплуатацию: 1986, 3-комн, Кол-во жилых помещений: 111, E, дом 40/73, нет, да, да, да, да, нет, Отсутствует, Грузовых лифтов: 0, Год постройки: 1986, Задонский проезд, 37.761312, 55.620220
Свяжитесь со мной на счет цены
10 дн.
T55S620220L37S761312T

На карте


Условия сделки

Источник


Старт продаж

Возможно заинтересует