Top.Mail.Ru

Ореховый проезд, д. 29, к. 1

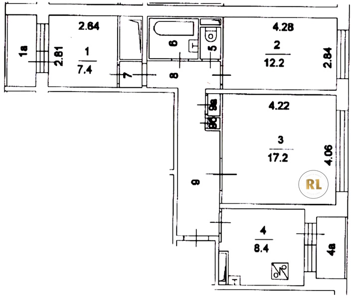
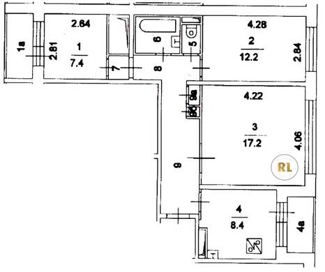
База каталог, Кол-во подъездов: 4, Отсутствует, П-30, Москва, Зябликово, Площадь парковки: 676, Пассажирский лифт: 4, От метро: 890, Южный, да, Наименьшее кол-во этажей: 1, Наибольшее кол-во этажей: 12, Шипиловская, Кол-во помещений: 183, Кол-во нежилых помещений: 0, Год ввода в эксплуатацию: 1977, 3-комн, Кол-во жилых помещений: 183, Не присвоен, дом 29, корпус 1, нет, да, да, да, да, да, Имеется, Грузовых лифтов: 4, Год постройки: 1977, Ореховый проезд, 37.730607, 55.620357
Свяжитесь со мной на счет цены
10 дн.
T55S620357L37S730607T

На карте


Условия сделки

Источник


Старт продаж

Возможно заинтересует