Top.Mail.Ru

Веселая ул., д. 3

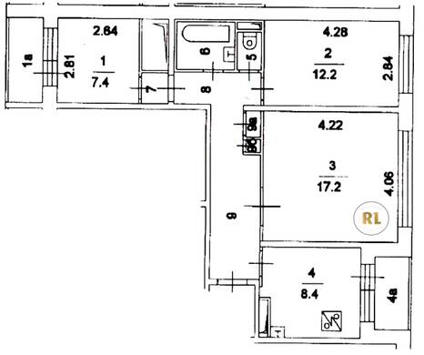
База каталог, Кол-во подъездов: 3, Имеется, П-30, Москва, Царицыно, Площадь парковки: 0, Пассажирский лифт: 6, От метро: 2370, Южный, нет, Наименьшее кол-во этажей: 14, Наибольшее кол-во этажей: 14, Орехово, Кол-во помещений: 164, Кол-во нежилых помещений: 1, Год ввода в эксплуатацию: 1991, 3-комн, Кол-во жилых помещений: 163, D, дом 3, нет, да, да, нет, нет, нет, Имеется, Грузовых лифтов: 0, Год постройки: 1991, Веселая улица, 37.667096, 55.620713
Свяжитесь со мной на счет цены
10 дн.
T55S620713L37S667096T

На карте


Условия сделки

Источник


Старт продаж

Возможно заинтересует