Top.Mail.Ru

Задонский проезд, д. 32, к. 2

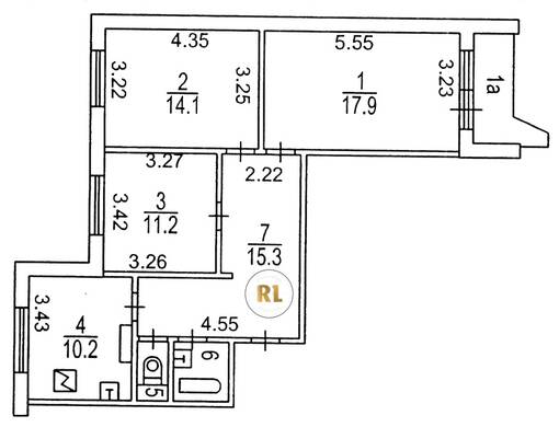
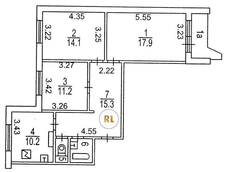
База каталог, Кол-во подъездов: 3, П-44, Москва, Зябликово, Площадь парковки: 0, Пассажирский лифт: 3, От метро: 1190, Южный, нет, Наименьшее кол-во этажей: 1, Наибольшее кол-во этажей: 17, Шипиловская, Кол-во помещений: 231, Кол-во нежилых помещений: 39, Год ввода в эксплуатацию: 1996, 3-комн, Кол-во жилых помещений: 192, дом 32, корпус 2, нет, да, да, да, да, нет, Отсутствует, Грузовых лифтов: 3, Год постройки: 1996, Задонский проезд, 37.759794, 55.620926
Свяжитесь со мной на счет цены
10 дн.
T55S620926L37S759794T

На карте


Условия сделки

Источник


Старт продаж

Возможно заинтересует