Top.Mail.Ru

Шипиловская ул., д. 48, к. 1

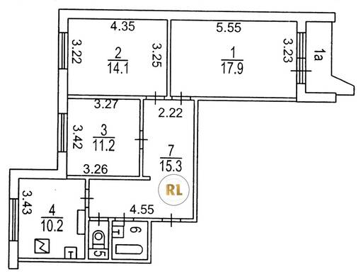
База каталог, Кол-во подъездов: 5, П-44, Москва, Зябликово, Пассажирский лифт: 5, От метро: 500, Южный, да, Наименьшее кол-во этажей: 1, Наибольшее кол-во этажей: 17, Шипиловская, Кол-во помещений: 327, Кол-во нежилых помещений: 0, Год ввода в эксплуатацию: 1986, 3-комн, Кол-во жилых помещений: 327, дом 48, корпус 1, да, да, да, да, да, да, Грузовых лифтов: 5, Год постройки: 1986, Шипиловская улица, 37.735728, 55.621333
19 500 000 Р
10 дн.
T55S621333L37S735728T
+

На карте


Условия сделки

Источник


Старт продаж

Возможно заинтересует