Top.Mail.Ru

Шипиловская ул., д. 37, к. 1

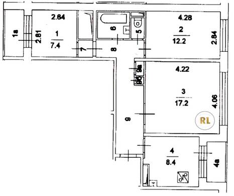
База каталог, Кол-во подъездов: 7, П-30, Москва, Зябликово, Площадь парковки: 0, Пассажирский лифт: 7, От метро: 580, Южный, нет, Наименьшее кол-во этажей: 1, Наибольшее кол-во этажей: 12, Шипиловская, Кол-во помещений: 622, Кол-во нежилых помещений: 290, Год ввода в эксплуатацию: 1981, 3-комн, Кол-во жилых помещений: 332, Не присвоен, дом 37, корпус 1, да, да, да, да, да, да, Грузовых лифтов: 7, Год постройки: 1981, Шипиловская улица, 37.733635, 55.622243
Свяжитесь со мной на счет цены
10 дн.
T55S622243L37S733635T

На карте


Условия сделки

Источник


Старт продаж

Возможно заинтересует