Top.Mail.Ru

пос. Внуковское, ул. Летчика Грицевца, д. 9

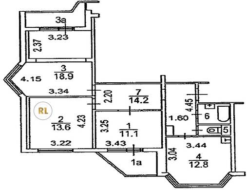
База каталог, Кол-во подъездов: 4, Имеется, П-44К, Москва, Внуковское, Площадь парковки: 100, Пассажирский лифт: 4, От метро: 2270, Новомосковский, да, Наименьшее кол-во этажей: 14, Наибольшее кол-во этажей: 17, Рассказовка, Кол-во помещений: 238, Кол-во нежилых помещений: 6, Год ввода в эксплуатацию: 2013, 3-комн, Кол-во жилых помещений: 232, В, дом 9, нет, да, да, нет, нет, нет, Имеется, Грузовых лифтов: 4, Год постройки: 2012, поселение Внуковское, улица Летчика Грицевца, 37.309172, 55.623595
Свяжитесь со мной на счет цены
10 дн.
T55S623595L37S309172T

На карте


Условия сделки

Источник


Старт продаж

Возможно заинтересует