Top.Mail.Ru

Задонский проезд, д. 22

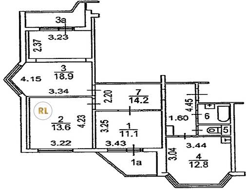
База каталог, Кол-во подъездов: 3, П-44M, Москва, Зябликово, Пассажирский лифт: 3, От метро: 730, Южный, да, Наименьшее кол-во этажей: 10, Наибольшее кол-во этажей: 10, Шипиловская, Кол-во помещений: 115, Кол-во нежилых помещений: 0, Год ввода в эксплуатацию: 2001, 3-комн, Кол-во жилых помещений: 115, дом 22, нет, да, да, да, да, да, Грузовых лифтов: 3, Год постройки: 2001, Задонский проезд, 37.754062, 55.623702
Свяжитесь со мной на счет цены
10 дн.
T55S623702L37S754062T

На карте


Условия сделки

Источник


Старт продаж

Возможно заинтересует