Top.Mail.Ru

Кировоградская ул., д. 9, к. 2

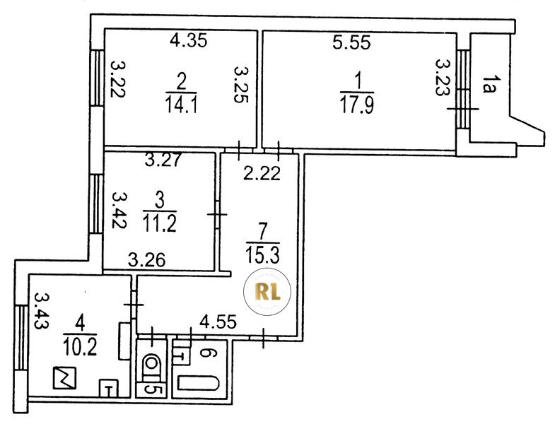
База каталог, Кол-во помещений: 472, П-44, Москва, Чертаново Северное, Площадь парковки: 0, Пассажирский лифт: 7, От метро: 90, Южный, нет, Наименьшее кол-во этажей: 17, Наибольшее кол-во этажей: 17, Южная, Кол-во подъездов: 7, Год ввода в эксплуатацию: 1989, Кол-во нежилых помещений: 9, 3-комн, Кол-во жилых помещений: 463, дом 9, корпус 2, да, да, да, да, да, да, Грузовых лифтов: 7, Год постройки: 1989, Кировоградская улица, 37.611042, 55.623717
Свяжитесь со мной на счет цены
10 дн.
T55S623717L37S611042T

На карте


Условия сделки

Источник


Старт продаж

Возможно заинтересует