Top.Mail.Ru

улица Теплый Стан, д. 13, к. 1

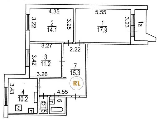
База каталог, Кол-во подъездов: 4, П-44, Москва, Теплый Стан, Площадь парковки: 0, Пассажирский лифт: 4, От метро: 1060, Юго-Западный, нет, Наименьшее кол-во этажей: 17, Наибольшее кол-во этажей: 17, Тёплый Стан, Кол-во помещений: 272, Кол-во нежилых помещений: 1, Год ввода в эксплуатацию: 1983, 3-комн, Кол-во жилых помещений: 271, Не присвоен, дом 13, корпус 1, нет, да, да, да, да, да, Имеется, Грузовых лифтов: 4, Год постройки: 1982, улица Теплый Стан, 37.491161, 55.624037
Свяжитесь со мной на счет цены
10 дн.
T55S624037L37S491161T

На карте


Условия сделки

Источник


Старт продаж

Возможно заинтересует