Top.Mail.Ru

пос. Внуковское, ул. Летчика Грицевца, д. 12

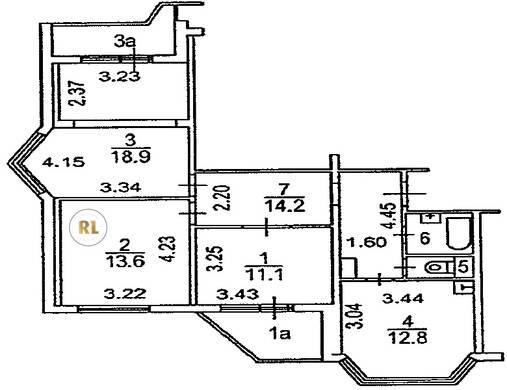
База каталог, Кол-во подъездов: 7, Имеется, П-44T, Москва, Внуковское, Площадь парковки: 1137,5, Пассажирский лифт: 7, От метро: 2150, Новомосковский, да, Наименьшее кол-во этажей: 17, Наибольшее кол-во этажей: 17, Рассказовка, Кол-во помещений: 462, Кол-во нежилых помещений: 14, Год ввода в эксплуатацию: 2013, 3-комн, Кол-во жилых помещений: 448, В, дом 12, нет, да, да, нет, нет, нет, Имеется, Грузовых лифтов: 7, Год постройки: 2012, поселение Внуковское, улица Летчика Грицевца, 37.311229, 55.624174
Свяжитесь со мной на счет цены
10 дн.
T55S624174L37S311229T

На карте


Условия сделки

Источник


Старт продаж

Возможно заинтересует