Top.Mail.Ru

улица Теплый Стан, д. 17

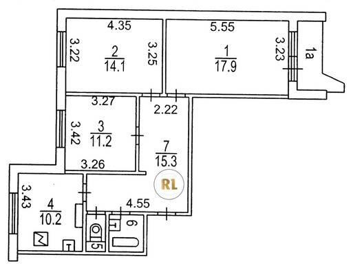
База каталог, Кол-во подъездов: 4, П-44, Москва, Теплый Стан, Площадь парковки: 0, Пассажирский лифт: 4, От метро: 1170, Юго-Западный, нет, Наименьшее кол-во этажей: 16, Наибольшее кол-во этажей: 16, Тёплый Стан, Кол-во помещений: 256, Кол-во нежилых помещений: 1, Год ввода в эксплуатацию: 1981, 3-комн, Кол-во жилых помещений: 255, Не присвоен, дом 17, нет, да, да, да, да, нет, Имеется, Грузовых лифтов: 4, Год постройки: 1981, улица Теплый Стан, 37.489598, 55.624195
Свяжитесь со мной на счет цены
10 дн.
T55S624195L37S489598T

На карте


Условия сделки

Источник


Старт продаж

Возможно заинтересует