Top.Mail.Ru

пос. Внуковское, ул. Летчика Грицевца, д. 11

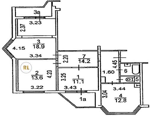
База каталог, Кол-во подъездов: 6, Имеется, П-44К, Москва, Внуковское, Пассажирский лифт: 6, От метро: 2210, Новомосковский, да, Наименьшее кол-во этажей: 17, Наибольшее кол-во этажей: 17, Рассказовка, Кол-во помещений: 396, Кол-во нежилых помещений: 6, Год ввода в эксплуатацию: 2013, 3-комн, Кол-во жилых помещений: 390, В, дом 11, нет, да, да, нет, нет, нет, Имеется, Грузовых лифтов: 6, Год постройки: 2012, поселение Внуковское, улица Летчика Грицевца, 37.309585, 55.624261
Свяжитесь со мной на счет цены
10 дн.
T55S624261L37S309585T

На карте


Условия сделки

Источник


Старт продаж

Возможно заинтересует