Top.Mail.Ru

Профсоюзная ул., д. 144

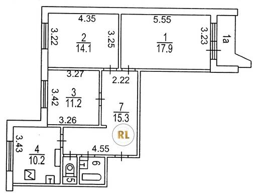
База каталог, Кол-во подъездов: 4, П-44, Москва, Теплый Стан, Площадь парковки: 0, Пассажирский лифт: 4, От метро: 560, Юго-Западный, нет, Наименьшее кол-во этажей: 17, Наибольшее кол-во этажей: 17, Тёплый Стан, Кол-во помещений: 263, Кол-во нежилых помещений: 0, Год ввода в эксплуатацию: 1987, 3-комн, Кол-во жилых помещений: 263, Не присвоен, дом 144, да, да, да, да, да, да, Грузовых лифтов: 4, Год постройки: 1987, Профсоюзная улица, 37.508292, 55.624347
Свяжитесь со мной на счет цены
10 дн.
T55S624347L37S508292T

На карте


Условия сделки

Источник


Старт продаж

Возможно заинтересует