Top.Mail.Ru

Ореховый проезд, д. 15

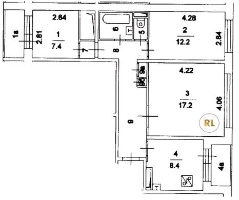
База каталог, Кол-во подъездов: 8, Отсутствует, П-30, Москва, Зябликово, Площадь парковки: 735,94, Пассажирский лифт: 16, От метро: 790, Южный, да, Наименьшее кол-во этажей: 1, Наибольшее кол-во этажей: 12, Шипиловская, Кол-во помещений: 380, Кол-во нежилых помещений: 0, Год ввода в эксплуатацию: 1979, 3-комн, Кол-во жилых помещений: 380, Не присвоен, дом 15, нет, да, да, да, да, да, Отсутствует, Грузовых лифтов: 0, Год постройки: 1979, Ореховый проезд, 37.734362, 55.624581
Свяжитесь со мной на счет цены
10 дн.
T55S624581L37S734362T

На карте


Условия сделки

Источник


Старт продаж

Возможно заинтересует