Top.Mail.Ru

Каширское шоссе, д. 80, к. 2

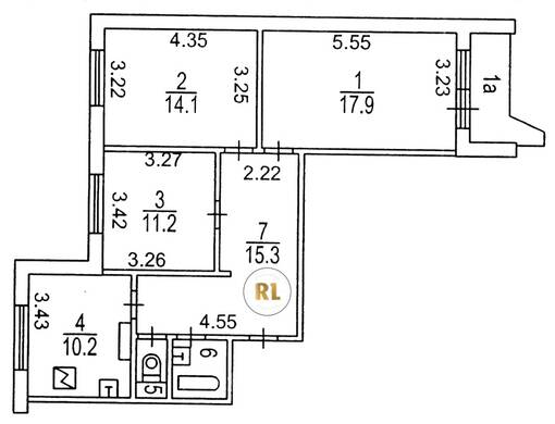
База каталог, Кол-во подъездов: 7, Имеется, П-44, Москва, Орехово-Борисово Северное, Площадь парковки: 0, Пассажирский лифт: 7, От метро: 1760, Южный, нет, Наименьшее кол-во этажей: 17, Наибольшее кол-во этажей: 17, Орехово, Кол-во помещений: 473, Кол-во нежилых помещений: 0, Год ввода в эксплуатацию: 1984, 3-комн, Кол-во жилых помещений: 473, E, дом 80, корпус 2, нет, да, да, да, нет, нет, Имеется, Грузовых лифтов: 7, Год постройки: 1984, Каширское шоссе, 37.706101, 55.625379
Свяжитесь со мной на счет цены
10 дн.
T55S625379L37S706101T

На карте


Условия сделки

Источник


Старт продаж

Возможно заинтересует