Top.Mail.Ru

улица Академика Капицы, д. 22

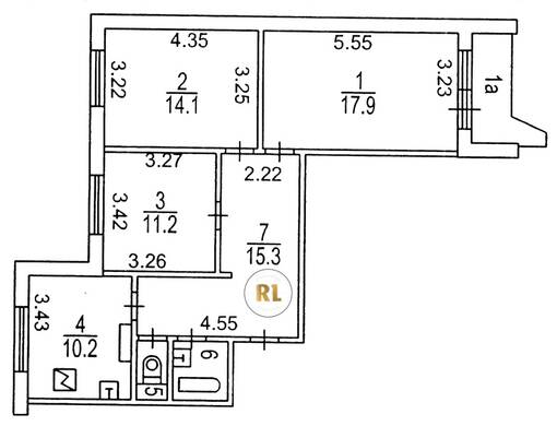
База каталог, Кол-во подъездов: 3, Имеется, П-44, Москва, Коньково, Пассажирский лифт: 3, От метро: 940, Юго-Западный, да, Наименьшее кол-во этажей: 1, Наибольшее кол-во этажей: 17, Коньково, Кол-во помещений: 204, Кол-во нежилых помещений: 2, Год ввода в эксплуатацию: 1986, 3-комн, Кол-во жилых помещений: 202, D, дом 22, нет, да, да, да, да, да, Имеется, Грузовых лифтов: 3, Год постройки: 1986, улица Академика Капицы, 37.524219, 55.625892
Свяжитесь со мной на счет цены
10 дн.
T55S625892L37S524219T

На карте


Условия сделки

Источник


Старт продаж

Возможно заинтересует