Top.Mail.Ru

улица Академика Капицы, д. 30, к. 1

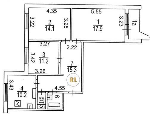
База каталог, Кол-во нежилых помещений: 1, П-44, Москва, Коньково, Пассажирский лифт: 4, От метро: 740, Юго-Западный, да, Наименьшее кол-во этажей: 1, Наибольшее кол-во этажей: 17, Коньково, Кол-во помещений: 272, Кол-во подъездов: 4, 3-комн, Год ввода в эксплуатацию: 1986, Кол-во жилых помещений: 271, E, дом 30, корпус 1, нет, да, да, да, да, да, Имеется, Грузовых лифтов: 4, Год постройки: 1986, улица Академика Капицы, 37.519890, 55.626670
Свяжитесь со мной на счет цены
10 дн.
T55S626670L37S519890T

На карте


Условия сделки

Источник


Старт продаж

Возможно заинтересует