Top.Mail.Ru

Кировоградская ул., д. 8, к. 5

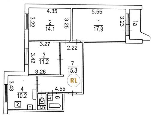
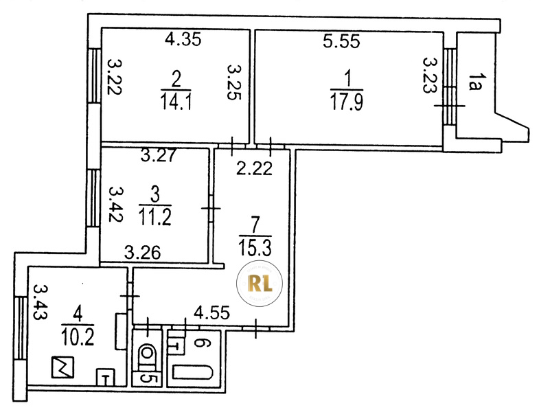
База каталог, Кол-во подъездов: 2, П-44, Москва, Чертаново Северное, Пассажирский лифт: 2, От метро: 550, Южный, да, Наименьшее кол-во этажей: 17, Наибольшее кол-во этажей: 17, Южная, Кол-во помещений: 136, Кол-во нежилых помещений: 1, Год ввода в эксплуатацию: 1998, 3-комн, Кол-во жилых помещений: 135, Не присвоен, дом 8, корпус 5, да, да, да, да, да, да, Грузовых лифтов: 2, Год постройки: 1998, Кировоградская улица, 37.607844, 55.627285
Свяжитесь со мной на счет цены
10 дн.
T55S627285L37S607844T

На карте


Условия сделки

Источник


Старт продаж

Возможно заинтересует