Top.Mail.Ru

улица Академика Капицы, д. 30, к. 2

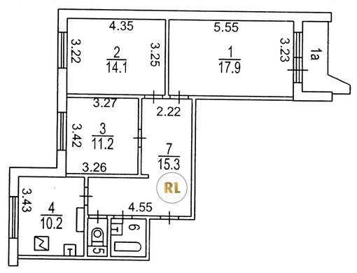
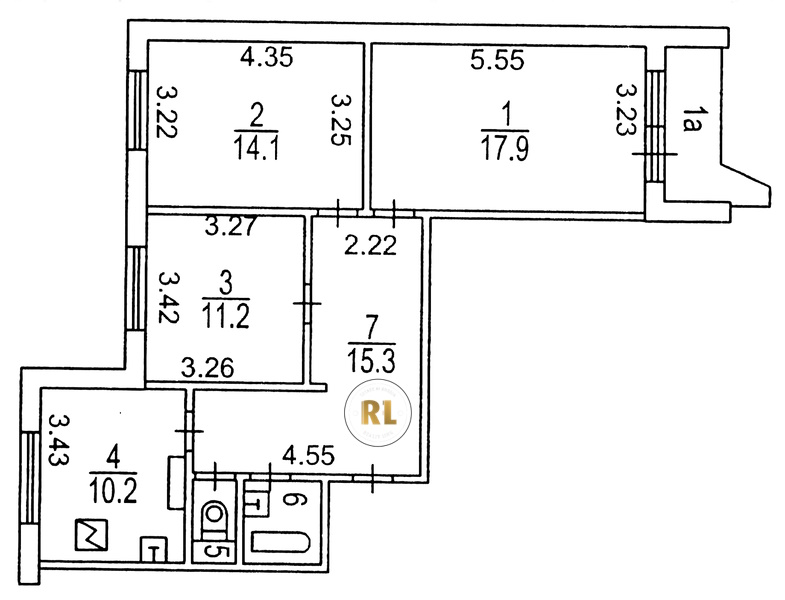
База каталог, Кол-во подъездов: 4, П-44, Москва, Коньково, Площадь парковки: 0, Пассажирский лифт: 4, От метро: 600, Юго-Западный, нет, Наименьшее кол-во этажей: 0, Наибольшее кол-во этажей: 17, Коньково, Кол-во помещений: 264, Кол-во нежилых помещений: 0, Год ввода в эксплуатацию: 1986, 3-комн, Кол-во жилых помещений: 264, D, дом 30, корпус 2, нет, да, да, да, да, да, Грузовых лифтов: 4, Год постройки: 1986, улица Академика Капицы, 37.520743, 55.627753
Свяжитесь со мной на счет цены
10 дн.
T55S627753L37S520743T

На карте


Условия сделки

Источник


Старт продаж

Возможно заинтересует