Top.Mail.Ru

улица Академика Капицы, д. 34/121

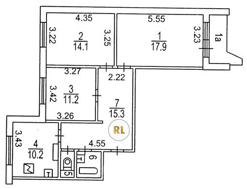
База каталог, Кол-во подъездов: 5, Имеется, П-44, Москва, Коньково, Пассажирский лифт: 5, От метро: 480, Юго-Западный, да, Наименьшее кол-во этажей: 1, Наибольшее кол-во этажей: 17, Коньково, Кол-во помещений: 332, Кол-во нежилых помещений: 6, Год ввода в эксплуатацию: 1986, 3-комн, Кол-во жилых помещений: 326, E, дом 34/121, да, да, да, да, да, да, Имеется, Грузовых лифтов: 5, Год постройки: 1986, улица Академика Капицы, 37.517608, 55.628535
Свяжитесь со мной на счет цены
10 дн.
T55S628535L37S517608T

На карте


Условия сделки

Источник


Старт продаж

Возможно заинтересует