Top.Mail.Ru

Кавказский бульвар, д. 50

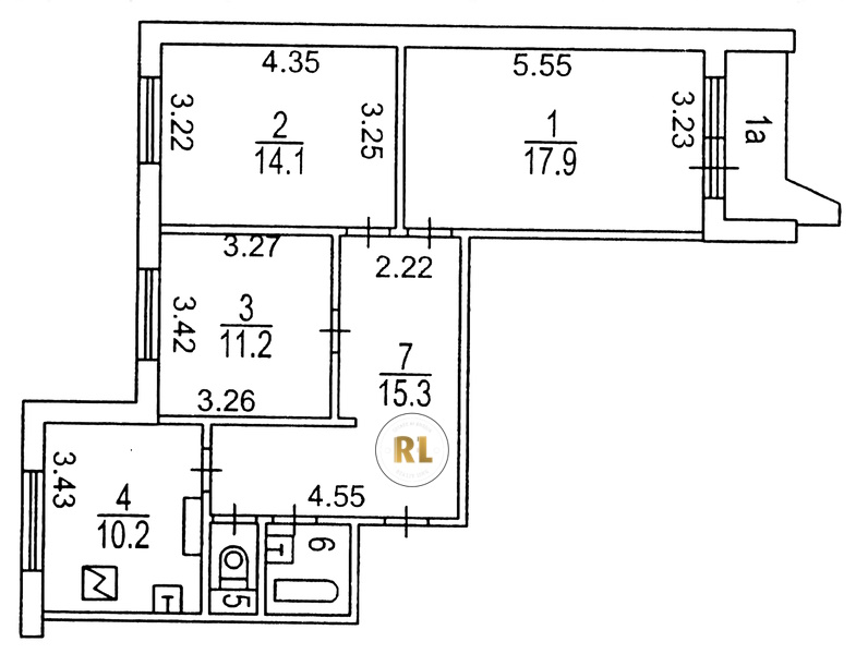
База каталог, Кол-во подъездов: 5, Имеется, П-44, Москва, Царицыно, Площадь парковки: 0, Пассажирский лифт: 5, От метро: 3600, Южный, нет, Наименьшее кол-во этажей: 17, Наибольшее кол-во этажей: 17, Южная, Кол-во помещений: 332, Кол-во нежилых помещений: 2, Год ввода в эксплуатацию: 1997, 3-комн, Кол-во жилых помещений: 330, D, дом 50, нет, нет, нет, нет, нет, нет, Имеется, Грузовых лифтов: 5, Год постройки: 1997, Кавказский бульвар, 37.648178, 55.628591
Свяжитесь со мной на счет цены
10 дн.
T55S628591L37S648178T

На карте


Условия сделки

Источник


Старт продаж

Возможно заинтересует