Top.Mail.Ru

улица Академика Варги, д. 5

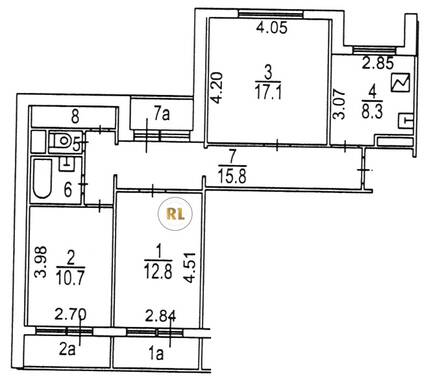
База каталог, Кол-во подъездов: 8, Имеется, П-55, Москва, Теплый Стан, Площадь парковки: 0, Пассажирский лифт: 8, От метро: 2110, Юго-Западный, нет, Наименьшее кол-во этажей: 14, Наибольшее кол-во этажей: 14, Тропарёво, Кол-во помещений: 358, Кол-во нежилых помещений: 12, Год ввода в эксплуатацию: 1995, 3-комн, Кол-во жилых помещений: 346, Не присвоен, дом 5, нет, да, да, нет, нет, нет, Имеется, Грузовых лифтов: 8, Год постройки: 1994, улица Академика Варги, 37.475531, 55.628647
15 950 000 Р
10 дн.
T55S628647L37S475531T
+

На карте


Условия сделки

Источник