Top.Mail.Ru

улица Мусы Джалиля, д. 6, к. 1

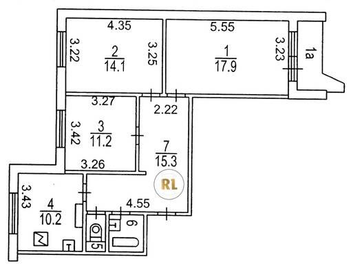
База каталог, Кол-во подъездов: 2, Отсутствует, П-44, Москва, Зябликово, Площадь парковки: 393,24, Пассажирский лифт: 2, От метро: 640, Южный, да, Наименьшее кол-во этажей: 1, Наибольшее кол-во этажей: 17, Борисово, Кол-во помещений: 136, Кол-во нежилых помещений: 0, Год ввода в эксплуатацию: 1983, 3-комн, Кол-во жилых помещений: 136, Не присвоен, дом 6, корпус 1, нет, да, да, да, да, да, Отсутствует, Грузовых лифтов: 2, Год постройки: 1983, улица Мусы Джалиля, 37.739510, 55.628703
Свяжитесь со мной на счет цены
10 дн.
T55S628703L37S739510T

На карте


Условия сделки

Источник


Старт продаж

Возможно заинтересует