Top.Mail.Ru

улица Мусы Джалиля, д. 7, к. 4

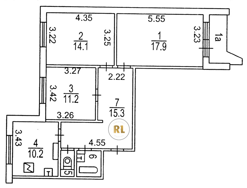
База каталог, Кол-во подъездов: 3, Имеется, П-44, Москва, Зябликово, Пассажирский лифт: 3, От метро: 670, Южный, да, Наименьшее кол-во этажей: 1, Наибольшее кол-во этажей: 17, Борисово, Кол-во помещений: 208, Кол-во нежилых помещений: 5, Год ввода в эксплуатацию: 1984, 3-комн, Кол-во жилых помещений: 203, дом 7, корпус 4, нет, да, да, да, да, да, Имеется, Грузовых лифтов: 3, Год постройки: 1984, улица Мусы Джалиля, 37.744639, 55.628739
Свяжитесь со мной на счет цены
10 дн.
T55S628739L37S744639T

На карте


Условия сделки

Источник


Старт продаж

Возможно заинтересует