Top.Mail.Ru

улица Мусы Джалиля, д. 7, к. 6

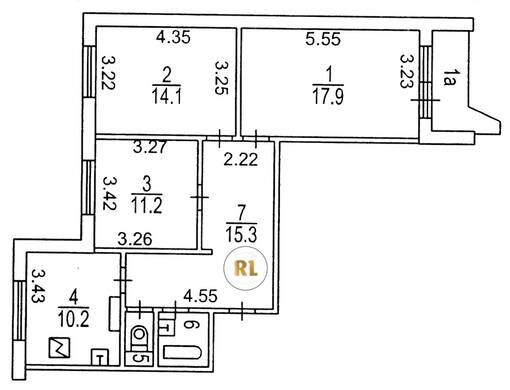
База каталог, Кол-во подъездов: 3, П-44, Москва, Зябликово, Площадь парковки: 0, Пассажирский лифт: 3, От метро: 720, Южный, нет, Наименьшее кол-во этажей: 1, Наибольшее кол-во этажей: 17, Борисово, Кол-во помещений: 204, Кол-во нежилых помещений: 1, Год ввода в эксплуатацию: 1983, 3-комн, Кол-во жилых помещений: 203, Не присвоен, дом 7, корпус 6, нет, да, да, да, да, да, Грузовых лифтов: 3, Год постройки: 1983, улица Мусы Джалиля, 37.748484, 55.628830
19 990 000 Р
10 дн.
T55S628830L37S748484T
+

На карте


Условия сделки

Источник


Старт продаж

Возможно заинтересует