Top.Mail.Ru

Профсоюзная ул., д. 119, к. 1

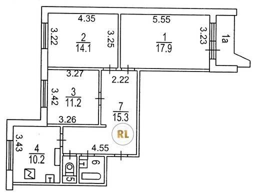
База каталог, Кол-во подъездов: 3, П-44, Москва, Коньково, Площадь парковки: 0, Пассажирский лифт: 3, От метро: 360, Юго-Западный, нет, Наименьшее кол-во этажей: 0, Наибольшее кол-во этажей: 17, Коньково, Кол-во помещений: 200, Кол-во нежилых помещений: 2, Год ввода в эксплуатацию: 1986, 3-комн, Кол-во жилых помещений: 198, D, дом 119, корпус 1, да, да, да, да, да, да, Грузовых лифтов: 3, Год постройки: 1986, Профсоюзная улица, 37.518542, 55.629221
Свяжитесь со мной на счет цены
10 дн.
T55S629221L37S518542T

На карте


Условия сделки

Источник


Старт продаж

Возможно заинтересует