Top.Mail.Ru

улица Мусы Джалиля, д. 5, к. 2

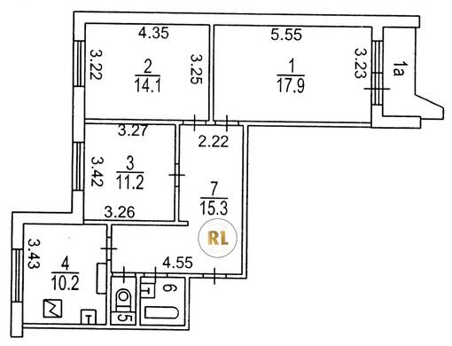
База каталог, Кол-во подъездов: 3, Имеется, П-44, Москва, Зябликово, Пассажирский лифт: 3, От метро: 490, Южный, да, Наименьшее кол-во этажей: 17, Наибольшее кол-во этажей: 17, Борисово, Кол-во помещений: 203, Кол-во нежилых помещений: 1, Год ввода в эксплуатацию: 1984, 3-комн, Кол-во жилых помещений: 202, дом 5, корпус 2, да, да, да, да, да, да, Имеется, Грузовых лифтов: 3, Год постройки: 1984, улица Мусы Джалиля, 37.745367, 55.629684
Свяжитесь со мной на счет цены
10 дн.
T55S629684L37S745367T

На карте


Условия сделки

Источник


Старт продаж

Возможно заинтересует