Top.Mail.Ru

улица Мусы Джалиля, д. 5, к. 1

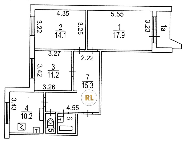
База каталог, Кол-во помещений: 476, П-44/16, Москва, Зябликово, Площадь парковки: 0, Пассажирский лифт: 7, От метро: 520, Южный, нет, Наименьшее кол-во этажей: 1, Наибольшее кол-во этажей: 17, Борисово, Кол-во подъездов: 7, Год ввода в эксплуатацию: 1984, Кол-во нежилых помещений: 2, 3-комн, Кол-во жилых помещений: 474, дом 5, корпус 1, да, да, да, да, да, да, Грузовых лифтов: 7, Год постройки: 1984, улица Мусы Джалиля, 37.744136, 55.630030
Свяжитесь со мной на счет цены
10 дн.
T55S630030L37S744136T

На карте


Условия сделки

Источник


Старт продаж

Возможно заинтересует