Top.Mail.Ru

улица Мусы Джалиля, д. 5, к. 5

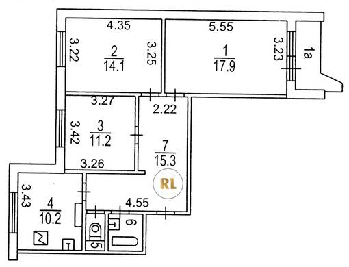
База каталог, Кол-во подъездов: 7, Имеется, П-44, Москва, Зябликово, Площадь парковки: 2116, Пассажирский лифт: 7, От метро: 580, Южный, да, Наименьшее кол-во этажей: 1, Наибольшее кол-во этажей: 17, Борисово, Кол-во помещений: 0, Кол-во нежилых помещений: 0, Год ввода в эксплуатацию: 1983, 3-комн, Кол-во жилых помещений: 0, Не присвоен, дом 5, корпус 5, да, да, да, да, да, да, Имеется, Грузовых лифтов: 7, Год постройки: 1983, улица Мусы Джалиля, 37.748232, 55.630111
16 500 000 Р
10 дн.
T55S630111L37S748232T
+

На карте


Условия сделки

Источник


Старт продаж